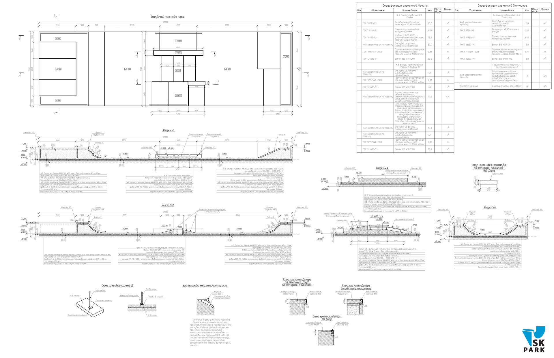
Строительство бетонных скейтпарков включает в себя следующие основные виды и этапы работ:

На сегодняшний день одним их приоритетных направлений компании SKpark является строительство бетонных скейт парков в Казахстане и других стран СНГ, а также в РФ.
Бетон самый долговечный и гладкий материал из которого возможно построить скейт-парк. Срок эксплуатации бетонного скейт-парка при правильном исполнении и соблюдении всех норм, СП и ГОСТ стандартов может достигать десятки лет.
Строительство бетонных скейтпарков включает в себя следующие основные виды и этапы работ:


Бетонное покрытие площадки выполняется с армированием. Толщина покрытия не менее 100м м.
Наша компания использует только самый лучший класс бетона не менее B30.
Бетонирование скейт парка — вся функциональная поверхность, включающая в себя стартовые площадки фигур, горизонтальные, вертикальные, наклонные и радиусные плоскости производиться методом мокрого набрызга бетона под давлением (торкретирования). Поверхность обрабатывается методом ручной влажной затирки специальным методом.
Поверхность обрабатывается до максимально ровного и гладкого состояния с обеспечением максимальной линейности радиусов и наклонных поверхностей без резких изломов, наплывов, бугров и других дефектов, появившихся при укладке и обработке бетона, приводящих в последствии к повышению травматизма скейтпарка.

Каждому клиенту наша компания может разработать индивидуальный дизайн бетонного скейт парка и скейт площадки. Огромный выбор цветовых решений производителей бетона и красителей позволяет реализовать любые задумки, в том числе нанести логотип, разметку, инфографику и другие отличительные знаки.
Наша компания построила более 600 скейт-парков и свыше 300 других спортивных объектов, включая государственные, коммерческие и частные проекты. Мы работаем индивидуально с каждым заказчиком и учитываем все его пожелания.
По вашему запросу, наши специалисты оперативно подготовят для вас индивидуальный проект бетонного скейт-парка и вышлют коммерческое предложение которое будет включать в себя, сметную стоимость(цена за 1 кв.м.) на строительство бетонного скейт парка в Казахстане, а также стоимость рабочей документации(в случае необходимости), учитывая все ваши пожелания, удаленность, геологию, коммуникации, а также любые другие особенности объекта.
Дополнительно наша компания, также осуществляет следующие виды работ:
1. Какой срок службы бетонного скейт парка?
При правильном исполнении и соблюдении всех строительных норм, срок службы бетонного скейт парка может достигать несколько десятков лет.
2. Какую гарантию вы предоставляете на выполненные работы?
Срок гарантии – 24 месяца с момента подписания акта-приемки передачи
3. В каких регионах вы осуществляете работы?
На всей территории Казахстана и других стран СНГ, а также в РФ.
4. Какие средние сроки выполнения работ?
Средние сроки строительства составляют 5-6 недель в зависимости от типа, сложности, удаленности объекта и объема парка.
5. Какая должна быть толщина бетонного основания?
Наша компания рекомендует использовать толщину бетонных поверхностей не менее 100мм.