СТРОИТЕЛЬСТВО
СКЕЙТ-ПАРКОВ
И ПАМП ТРЕКОВ
В КАЗАХСТАНЕ
СТРОИТЕЛЬСТВО СКЕЙТ-ПАРКОВ
И ПАМП ТРЕКОВ В КАЗАХСТАНЕ
Готовые объекты

Бетонный скейт парк в г.Буй, Костромская область/ Concrete skatepark in Bui, Russia

Бетонный скейт парк в г.Буй, Костромская область/ Concrete skatepark in Bui, Russia
Площадь:
250 м²
Уровень:
начинающий
Вместимость:
12 чел
Реализовано на базе:
Адрес объекта:
г. Буй, Костромская область, ул. 9 Января д. 36 А (в северо-восточной части СОК «Спартак»)
Описание
История проекта

Среди объектов построенных компанией SKPARK в 2019 году, мы бы хотели выделить бетонный скейт парк в г. Буй, на территории спортивно-оздоровительного комплекса "Спартак".

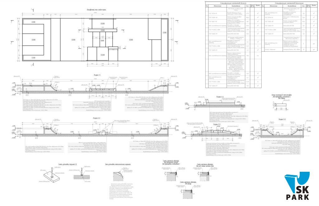
Площадь скейт парка составляет 250 кв. м., что позволяет вместить до 12 начинающих райдеров в таких дисциплинах как скейтбординг, ролики и кик скутер. Основную часть площадки занимает скейт плаза, включающая в себя два кикера, фанбокс и мэнуал пэд с грайндбоксом и рейлом, для изучения базовых трюков, основанных на прыжках и скольжениях, а для роллеров, катающихся в дисциплине "верт", предусмотрена минирампа. Кроме того, парк оборудован бетонными скамейками и урнами, что не только обеспечивает их долговечность, но и соответствуют общей стилистике объекта.

ТЕХНОЛОГИЯ СТРОИТЕЛЬСТВА БЕТОННОГО СКЕЙТ ПАРКА В БУЕ

Работа на местности начинается с разметки территории, далее удаляется плодородный слой грунта и производится отсыпка площадки песком и щебнем с последующей трамбовкой, это позволяет избежать осадки затвердевшего монолита и появления трещин. Поверх песчанно-гравийной "подушки" укладывается гидроизоляция, далее, устанавливается опалубка, произведенная на нашем собственном производстве, как и арматура из которой вяжется двуслойный, монолитный каркас. Зачастую для отвода сточных и талых вод используется дренаж, но в данном проекте мы предусмотрели небольшой разуклон, обеспечивающий сток вод естественным путем. В отличие от обычной бетонной плиты, при строительстве бетонного скейт парка, из арматуры формируются фигурные каркасы всех элементов площадки для последующей заливки, это крайне важный и трудоемкий процесс, обеспечивающий долговечность, свойственную монолитным конструкциям. Далее, в опалубку в которой размещен арматурный каркас будущих фигур и заливается бетон, формируется горизонтальная плоскость площадки. После того, как монолит наберет достаточную прочность, вся рабочая поверхность скейтпарка затирается в ручную по специальной технологии, для достижения максимально ровного покрытия, важно избегать появления заломов, выступов и прочих неровностей. По завершению чистовой отделки поверхности, производится нарезка деформационных швов, что позволяет избежать появления трещин в монолитной конструкции, из-за перепадов температуры.

Все работы, начиная от разработки проекта, были выполнены компанией SKPARK "под ключ", при строжайшем соблюдении норм безопасности в полном соответствии с требованиям ГОСТ 54415-2011 "Оборудование для скейтплощадок".

Бетонный скейт парк идеально вписывается в городской ландшафт, а так же является прекрасным решением в плане функционального благоустройства жилых комплексов, учебных заведений, мест отдыха и спортивно-развлекательных комплексов.

Ждем вас по адресу г. Буй, ул. 9 Января д. 36 А, спортивно-оздоровительный комплекс "Спартак".

Переговоры о строительстве скейт плазы мы вели с заказчиком на протяжении всего прошлого года. На тот момент Заказчик планировал, реализацию скейт парка SKL 25-8  на деревянном каркасе. После нескольких совещаний, анализа почвы земли, было принято решение построить скейт парк из бетона, что команда SK PARK успешно реализовала летом 2019 года.

Строительство такого рода объектов, требует крайне ответственного подхода на всех этапах, за основу был взят типовой проект SKL 25-8   и адаптирован под реализацию в бетонном виде. На проектном этапе, была разработана концепция скейт-парка, далее, наши специалисты подготовили рабочую документацию (стадия «П» и «Р»), после чего мы приступили к реализации проекта. Предварительно была произведена гео-разведка,это необходимый этап, дающий представление о типе почвы, глубине залегания грунтовых вод и промерзания грунта. На основании полученных данных было решено использовать высокопрочный бетон класса В 35 (марка 450) с классом морозостойкости F 300 и классом водонепроницаемости W12.

ВИДЕО

Следите за нами:
Вся информация размещенная на сайте не является публичной офертой.
Политика обработки персональных данных
Оставить заявку